项目业主 | OOD 生活方式定制
项目位置 | 广州建博会 完成时间 | 2025 年7月
项目功能 | 展会展位 项目面积 | 300㎡
总设计师 | 赵睿 /V2 纬图
策 展 人 | 山石里予 / OOD
空间设计 | 赵 睿 黄志彬 佘骏达 邓伟涛 危从全 叶増辉 李龙君 伍启雕 岑月兰 何静韵 /V2 纬图
艺 术 家 | 邓猗夫 健伯
花 艺 师 | 陈韫瑜
午宴主厨 | 龙桥私厨创始人 基哥
软装设计 | 薛慧思/OOD;岑月兰/V2 纬图
摄影摄像 | 李永茂 伍启雕
传媒管理 | 伍启雕 何静韵 / V2 纬图
活动推广 | 李咏华 邓志勇 唐熙兵 伍思慧 陈申/OOD;何静韵/V2 纬图
LAB设计中心 | 温天时 许锦标 何家裕 陈珍珍 周梦楠 张其伟 赵良钱 台广惠 /OOD
工艺与制造 | OOD 生产制造中心
展位搭建 | 王梓浠团队
物料供应 | 品相定制灯饰、石客照明
绘画作品 | 邓猗夫,《秘境彩蝶》260x230cm/布面丙烯/2025年;《苦B青年》100x80cm/布面油画/2012年;《白瓶》/30x30cm/木板油画/2005 年;《无题》/280x190cm/布面微喷/2023年画,2025年重印。
雕塑作品 | 健伯,《幻山》综合材料软雕塑/宣纸水墨,矿物颜料,金属/2022;《杂耍》/玻璃钢着色+钢板/2017-2025。
项目位置 | 广州建博会 完成时间 | 2025 年7月
项目功能 | 展会展位 项目面积 | 300㎡
总设计师 | 赵睿 /V2 纬图
策 展 人 | 山石里予 / OOD
空间设计 | 赵 睿 黄志彬 佘骏达 邓伟涛 危从全 叶増辉 李龙君 伍启雕 岑月兰 何静韵 /V2 纬图
艺 术 家 | 邓猗夫 健伯
花 艺 师 | 陈韫瑜
午宴主厨 | 龙桥私厨创始人 基哥
软装设计 | 薛慧思/OOD;岑月兰/V2 纬图
摄影摄像 | 李永茂 伍启雕
传媒管理 | 伍启雕 何静韵 / V2 纬图
活动推广 | 李咏华 邓志勇 唐熙兵 伍思慧 陈申/OOD;何静韵/V2 纬图
LAB设计中心 | 温天时 许锦标 何家裕 陈珍珍 周梦楠 张其伟 赵良钱 台广惠 /OOD
工艺与制造 | OOD 生产制造中心
展位搭建 | 王梓浠团队
物料供应 | 品相定制灯饰、石客照明
绘画作品 | 邓猗夫,《秘境彩蝶》260x230cm/布面丙烯/2025年;《苦B青年》100x80cm/布面油画/2012年;《白瓶》/30x30cm/木板油画/2005 年;《无题》/280x190cm/布面微喷/2023年画,2025年重印。
雕塑作品 | 健伯,《幻山》综合材料软雕塑/宣纸水墨,矿物颜料,金属/2022;《杂耍》/玻璃钢着色+钢板/2017-2025。
本次建博会,我为“OOD”呈现展览空间;简单而温暖的氛围正是该品牌一贯追求的生活理念,以展陈设计语言,为该场域创造——不仅能满足功能需求,更触及心灵层面松弛与共鸣的情绪价值。
设计师手记 Designer's Notebook
这是个很保守的设计,此次策展纯属经验主义,来自职业触觉和判断;项目形式其实不重要,最终整个完成,是一次完美的合作,是我一直以来最想有的合作方式。

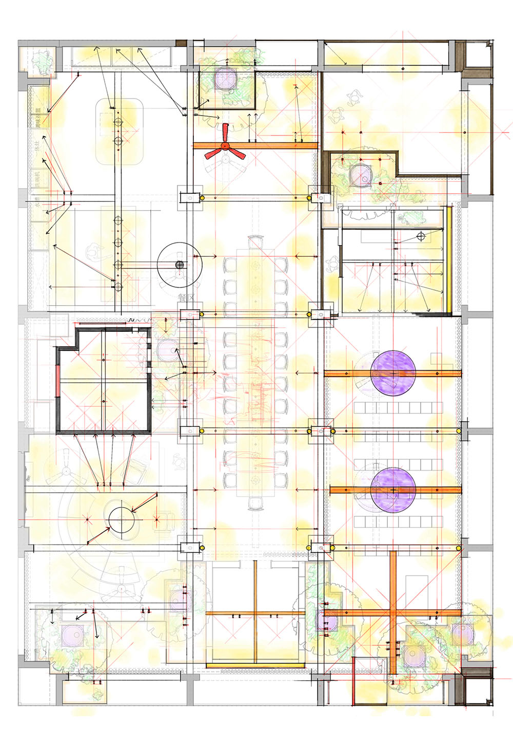
▽平面布置图

▽场馆平面

▽平面手稿

▽天花照明手稿
反复地想 | Deliberate over and over again
反复否定又反复的肯定,这是职业惯性的推敲与揣摩;我认为在执行的时候就只有一个结果,必须肯定一个做法,坚决去执行。

▽壁灯吊灯定制设计稿

▽窗帘布造型设计稿
说白了我的经验之谈就是怎么弄都不会出错的方法。想让它出彩,其实没有这么难,我想这是大多数设计师具备的能力。至于怎么样能做好一件事,我和合作伙伴提出我的愿望、看法。在人力资源、技术保障、推广运营的配合下得到资金支持,随着艺术家、花艺师、厨艺师的加入,大家可以提出各自想法,采纳我认为会添彩的部分,把它控制在一定的尺度上或者范围里。项目得以不断进阶优化,没有太多内耗。
▽无 题 | 邓猗夫
整个项目 | The whole project
我最高兴其实是看到厨师一群人忙忙碌碌,服务人员在穿梭来去,观众在屋里到处流动,现场什么动态都有,没有很固定的状态。大家能自由的使用空间,让做出来的空间更有活力,不存在刻意化的限制。
▽彩色块图案设计稿
▽大海的四个颜色•材料版展示设计
▽秘境彩蝶 | 邓猗夫

▽苦B青年 | 邓猗夫

标准模块化 | Standard modularization
时间关系,以前是由搭展公司出具体施工方案,现在变成和搭建公司一起列出细致清单,构件的数量与尺寸,连接工艺的优化都充分论证落实,包括艺术品摆设也以效果图一一求证,大家无间合作,确保万无一失。

▽材料展示板设计

▽现场搭建演示

赵睿×山石里予 • 流动 | 松弛的午后 • 策展现场

▽赵睿×山石里予 • 现场互动
像风一样,像水一样,松弛流动…
—
Like the wind, like water, relaxed and flowing...
团队作业需要大家对建筑空间的理解有很大的默契度,实际上我构想里就有这个事,看到花艺师在插花她问我意见,起初觉得跟我想法是不一样的,后来发现不能这样限定。软装饰品在摆场,我完全没有提供任何意见,看她们忙忙碌碌的摆弄着,当自己的地方,就像女主人在管理自己的房子,我觉得很漂亮很有魅力。大家都很喜欢,这是我最希望能做到的。

















