项目业主 | OOD 生活方式定制
项目位置 | 广州建博会 完成时间 | 2025 年7月
项目功能 | 展会展位 项目面积 | 300㎡
总设计师 | 赵睿 /V2 纬图
策 展 人 | 山石里予 / OOD
空间设计 | 赵 睿 黄志彬 佘骏达 邓伟涛 危从全 叶増辉 李龙君 伍启雕 岑月兰 何静韵 /V2 纬图
艺 术 家 | 邓猗夫 健伯
花 艺 师 | 陈韫瑜
午宴主厨 | 龙桥私厨创始人 基哥
软装设计 | 薛慧思/OOD;岑月兰/V2 纬图
摄影摄像 | 李永茂 伍启雕
传媒管理 | 伍启雕 何静韵 / V2 纬图
活动推广 | 李咏华 邓志勇 唐熙兵 伍思慧 陈申/OOD;何静韵/V2 纬图
LAB设计中心 | 温天时 许锦标 何家裕 陈珍珍 周梦楠 张其伟 赵良钱 台广惠 /OOD
工艺与制造 | OOD 生产制造中心
展位搭建 | 王梓浠团队
物料供应 | 品相定制灯饰、石客照明
绘画作品 | 邓猗夫,《秘境彩蝶》260x230cm/布面丙烯/2025年;《苦B青年》100x80cm/布面油画/2012年;《白瓶》/30x30cm/木板油画/2005 年;《无题》/280x190cm/布面微喷/2023年画,2025年重印。
雕塑作品 | 健伯,《幻山》综合材料软雕塑/宣纸水墨,矿物颜料,金属/2022;《杂耍》/玻璃钢着色+钢板/2017-2025。
项目位置 | 广州建博会 完成时间 | 2025 年7月
项目功能 | 展会展位 项目面积 | 300㎡
总设计师 | 赵睿 /V2 纬图
策 展 人 | 山石里予 / OOD
空间设计 | 赵 睿 黄志彬 佘骏达 邓伟涛 危从全 叶増辉 李龙君 伍启雕 岑月兰 何静韵 /V2 纬图
艺 术 家 | 邓猗夫 健伯
花 艺 师 | 陈韫瑜
午宴主厨 | 龙桥私厨创始人 基哥
软装设计 | 薛慧思/OOD;岑月兰/V2 纬图
摄影摄像 | 李永茂 伍启雕
传媒管理 | 伍启雕 何静韵 / V2 纬图
活动推广 | 李咏华 邓志勇 唐熙兵 伍思慧 陈申/OOD;何静韵/V2 纬图
LAB设计中心 | 温天时 许锦标 何家裕 陈珍珍 周梦楠 张其伟 赵良钱 台广惠 /OOD
工艺与制造 | OOD 生产制造中心
展位搭建 | 王梓浠团队
物料供应 | 品相定制灯饰、石客照明
绘画作品 | 邓猗夫,《秘境彩蝶》260x230cm/布面丙烯/2025年;《苦B青年》100x80cm/布面油画/2012年;《白瓶》/30x30cm/木板油画/2005 年;《无题》/280x190cm/布面微喷/2023年画,2025年重印。
雕塑作品 | 健伯,《幻山》综合材料软雕塑/宣纸水墨,矿物颜料,金属/2022;《杂耍》/玻璃钢着色+钢板/2017-2025。


本次建博会,我为“OOD”呈现展览空间;简单而温暖的氛围正是该品牌一贯追求的生活理念,以展陈设计语言,为该场域创造——不仅能满足功能需求,更触及心灵层面松弛与共鸣的情绪价值。


设计师手记 Designer's Notebook
这是个很保守的设计,此次策展纯属经验主义,来自职业触觉和判断;项目形式其实不重要,最终整个完成,是一次完美的合作,是我一直以来最想有的合作方式。















项目坐落于苏州,建筑外立面及室内的整体改造面积约为2000m²,是一个多功能的综合体,具体可分为产品展示区、办公区、会所体验接待洽谈区。项目改造前的店面是普通的老旧式单一功能性展厅,给这个品牌塑造一个全新的店面形象和构架一个出类拔萃的生活艺术馆是首要的任务。
The project is located in Suzhou,the overall reconstruction area of the building's facade and interior is about 2000㎡, which is a multi-functional complex.Specifically, it can be divided into product exhibition area, office area, club experience reception and negotiation area.Before the reconstruction, the storefront is an rdinary old-fashioned single functional exhibition hall,and the first task is to build a brand-new store image and build an outstanding life art gallery for this brand.
The project is located in Suzhou,the overall reconstruction area of the building's facade and interior is about 2000㎡, which is a multi-functional complex.Specifically, it can be divided into product exhibition area, office area, club experience reception and negotiation area.Before the reconstruction, the storefront is an rdinary old-fashioned single functional exhibition hall,and the first task is to build a brand-new store image and build an outstanding life art gallery for this brand.

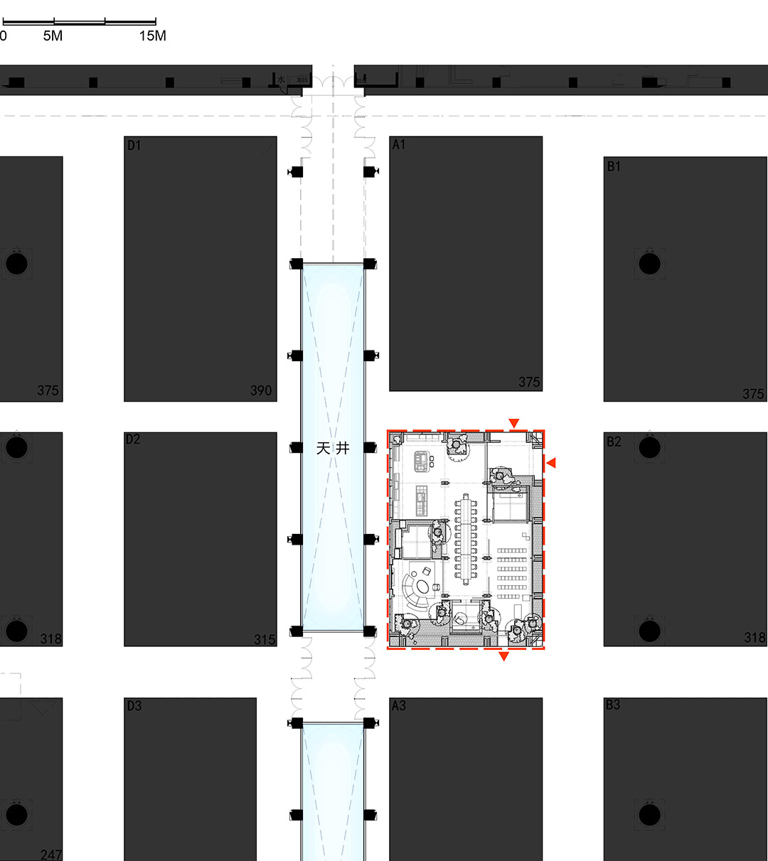
↖一层平面图

↖二层平面图
建筑的外墙改造,延续原有建筑结构的力量与节奏感,选用耐候钢板自然形成的锈纹和无缝拼接的工艺,铸造成一个独特的建筑雕塑体,从室外延伸到室内构架成整体的空间。


The exterior wall reconstruction of the building continues the strength and rhythm of the original building structure.An unique architectural sculpture body is cast by the natural rust pattern of hot continuous rolling steel with atmospheric corrosion resistance and with the seamless splicing technology, to construct the whole space from outdoor to indoor.

尽量拆除原有室外墙体裸露出建筑骨架;增强构造穿插和引入自然光线,使室内更为开放,从而加强展示效果,让室内外融合的更为舒适自然,采用开放式的平面布局,可以使人在空间中走动时更为流畅舒服。

Try to remove the original outdoor wall exposed to the building skeleton;Enhance the structure and bring natural light to make the interior more open, thus enhancing the display effect,and make indoor and outdoor integration more comfortable and natural.The use of open layout can make people move more smoothly and comfortable in the space.



↖壁画草稿
以苏州庭院假山石为内容营造出传统山水意境,或许太过具象的绘画容易抢夺产品的展示效果,所以选择较为抽象的表达形式,给阅者带来无尽的遐想。


↖壁画细节
✚
With the rockery in Suzhou courtyard as the content to create a traditional landscape artistic conception, perhaps too figurative painting is easy to rob the display effect of the product,so we choose the more abstract form of expression, which brings endless reverie to readers.

层层叠叠的构造穿插和原有裸露结构的结合,形成了丰富、自由、俏皮的空间层次。

The combination of the overlapping structure and the original exposed structure forms a rich, free and playful spatial level.





✚
主通道旋梯部分的球体装置成为整个空间的点睛之处,悬挂在半空中的球体,让空间旋律更为丰富,营造神秘感,意念延展无尽。
The sphere device of the main passageway’s spiral ladder part becomes the focal point of the whole space.The sphere suspended in the mid air makes the spatial themes richer, to create a sense of mystery and to stretch out people's mind.
The sphere device of the main passageway’s spiral ladder part becomes the focal point of the whole space.The sphere suspended in the mid air makes the spatial themes richer, to create a sense of mystery and to stretch out people's mind.

建筑构架延伸到室内后与其他的松散形体黏结在一起,形成近似半成品的剪纸雕塑空间,能从不同位置或漏透缝隙中看到不一样的产品展示区域,起到有效控制空间整体性的作用,便于以后分散区域的产品更换和完善。
When the architectural framework extends to the interior, it is bonded with other loose forms to form a paper-cut sculpture space similar to semi-finished products,to enable people to see different product display areas from different positions or leakage gaps.It can effectively control the integrity of space and facilitate the replacement and improvement of products in decentralized areas in the future.
When the architectural framework extends to the interior, it is bonded with other loose forms to form a paper-cut sculpture space similar to semi-finished products,to enable people to see different product display areas from different positions or leakage gaps.It can effectively control the integrity of space and facilitate the replacement and improvement of products in decentralized areas in the future.




利用构架和剪纸塑造出来的空间总是感觉缺乏一些内容;似乎显得过分理性了,继而沿用锈板材质设计一个自由交叉的线性装置,使空间的构成更具有灵动性。
The space created by frame and paper cutting always feels lack of some content,it seems to be over rational.Then a free cross linear device is designed based on the rust plate material to make the composition of space more flexible.
The space created by frame and paper cutting always feels lack of some content,it seems to be over rational.Then a free cross linear device is designed based on the rust plate material to make the composition of space more flexible.


↖雕塑装置草稿


苏州总是让人不由自主地想到人文传统、精致生活,意识里第一时间跳入我脑海中的是竹的编织元素。通过艺术团队反复推敲,凌乱的线条装置;如草书的飘逸砂笔,又或许是秋野中的一堆干稻草,自然而亲切,点缀和柔化了空间。

↖竹编装置草稿

↖竹编装置模型
Suzhou always reminds people of human traditions and exquisite life,the first thing that came to my mind subconsciously was the weaving elements of bamboo.The messy line devices, such as the flowing sand pen of cursive script, or perhaps a pile of dry straw in autumn field, decorated and softened the space naturally and kindly by the repeated deliberation of the art team.





空间中不同的体块穿插在各种角度自然会形成变化多样的立体构成。

The different body blocks in the space will naturally form a variety of three-dimensional structures.


